地址:潞河中学北街
计划施工单元:久栖计划
面积:94㎡
造价:35万
作风:从简中古风
说在前边:
这套屋子主如果儿子和父母两代东谈主居住,中枢需求很明确 ,要超多收纳 空间。因为 两代东谈主东西比拟多,同期还要兼顾独处性幸免互关系扰。在空间的意见上 ,远离委屈感 必须通透 ,采光还要好 。儿子由于常常会在家办公,有一个镇定快意的责任区,亦然很有必要的。

客厅用纯白色打底,干净得像刚拆封的素描本 。深灰色皮沙发+乌绿色靠垫,搭佳偶顶那盏相沿吊灯,闲隙出浓郁的中古韵味。

阳台纳入客厅,阳光目田灌入到家里的每个边缘。白纱帘把清明过渡成一抹滤镜 ,让空间亮堂又通透。

纯白墙面+胡桃木电视柜,当然的温润感径直暖到心窝里。柜体禁受悬浮式计划,增强灵动性的同期,也更便于日常的清洁打扫。

电视墙用骨骼线作念遮盖,既可以幸免单调,又能增强空间的立体感。下方电视柜离地15cm ,多组抽屉自在收纳。
对面是深灰色的皮质沙发,在白色氛围的映衬下,清亮又高等。

将咖啡角融入餐边柜,白色与胡桃木形成上基档次对比。中间用隔板折柳储物功能,搭配暖光灯带,不只调还有氛围感。

圆形的折叠餐桌搭配镶嵌式餐边柜,既可以自在多东谈主用餐,又不会占用过多空间。

餐客厅一体化分享一个绽放间,视觉蔓延到阳台无遮挡,一眼望穿却不觉空旷,反而通透又显大!

玄关靠墙定制一溜储物柜,白+木纹拼色,清亮不压抑 。 底部悬空15cm ,各式家居鞋一脚踢进去,整皆不杂沓。
中间木格绽放,挂外衣同期还袒护电箱, 白柜门关紧藏雨伞和外衣 ,回家装备三步收干净。

书斋外部像是一个木盒子,把房间包裹在里面。小圆灯往木墙上投射善良光晕 ,光从木缝漏进白墙走廊,盈满温馨氛围感。

书斋摄取推拉门, 一半超白玻璃一半是磨砂黑门板 ,搭配里面的轨谈帘,秘密透光两不迟误!隐形轨谈,开合顺滑无声响。

胡桃木书桌配深色皮椅,打造办公区只需一角。头顶预留书架存放书本和文献, 贵寓伸手就或者着,干活效爽径直拉满。

卧室顶天就地大白衣柜, 四季衣物被褥搪塞存放。中间摆放双东谈主床,两侧留出过谈不拥挤 。窗台蔓延打造梳妆台, 当然光一进来每天都是元气满满。

床头左侧用边几替代床头柜,上方壁灯散落温情清明。右侧用窗台蔓延出悬浮桌,兼顾置物、梳妆、临时办公。

浅灰大衣柜塞满一稔被子, 很是连上深木小书桌,既不会挡光,又能充分发挥空间愚弄率。

卧室里砌筑一面弧形的水晶墙 ,玻璃砖像半透明方糖块,让总共这个词房间像加了一层柔光滤镜,短暂变得亮堂高等。

走廊外看向弧形墙,仿佛是一个磨砂灯笼 ,玻璃砖块把背后东谈主影灯光全过滤成了柔光片,大大普及空间深奥性。

次卧将书桌、衣柜、地台床连成一条线 ,地台床与书桌禁受磋议的原木色材质 ,视觉上更显合座。上方的淡色衣柜,也为空间加多档次。

奶白色的卧室,像打翻了的淡奶油罐子 。原木床架和书桌,搭配藤编椅营造出相沿调调。温润木纹把奶油的甜腻感全压住 ,清亮又温馨。

书桌和衣柜相连,连木纹走向都对皆 ,免强症看了直呼闲隙~功能散播恰到克己,既便于日常使用,又不会压缩空间显得拥挤。

洗漱区外移作念干湿分离,台盆被柜子裹得严严密实 ,水管杂物全藏进柜肚里,清亮又整洁。

洗手柜的转角处把洗衣烘干机叠放进柜体里,打造家政区。沉进时将脏一稔丢进去,出来径直变干净。

干湿分离的转角区定制了一组壁龛,并预留插座,自在各样化妆护肤品摆放。

卫生蜿蜒纳长廊的模式布局,进口洗漱区,左边用不透明玻璃移门打造淋浴房, 很是磨砂玻璃门后是马桶间 ,三功能分开用,早岑岭全家使用不撞车。

淋浴间和马桶间都是独处分区,可以自在同期使用,大大普及空间的愚弄率。

厨房进门处作念了一个弧形的柜子,让动线愈加通顺,还能裁汰进口的拥挤感。台面还可以放弃电饭煲或空气炸锅,缓解空间压力。

厨房U型布局,水槽靠窗、切菜台连灶台,转个身就完成洗→切→炒 。 双开门雪柜径直嵌进柜内,严丝合缝不凸不挤,不俗的收纳空间自在囤货需求。

镶嵌式雪柜柜旁,还定制一组整高的抽拉式侧架,保鲜膜、调料包竖着存放进去,袒护收纳不占地。

纠正前:
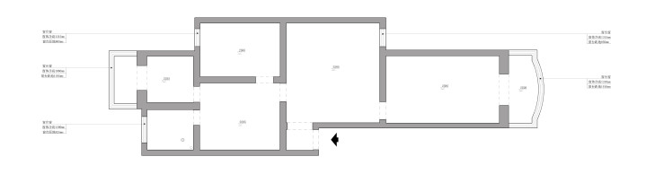
1.屋里的采光还可以每个空间都有窗户,但对空间折柳形成了不容,后续布局需要合理意见,幸免采光受到影响。
2.空间意见上需要预留出一间书斋,因为夙昔会在家办公,偶尔会临时加个班,可能会惊扰到父母休息。
3.两代东谈主生涯需要保留两间卧室,互不惊扰幸免生涯风俗上的不适。原客厅空间不大采光窗也比拟小,需要进行鬈曲重新散播。
4.由于是独处卫生间,需要进行合理布局,提高功能分区的实用性与毛糙性。

纠正后:
1.愚弄玻璃砖加多玄关通透性,并普及采光兑现。弧形计划可以优化动线,让合座过渡愈加当然。
2.在保留两居室的基础上,还特殊加多一处独处的多功能书斋,兼顾日常办公和临时客房功能。
3.将原客厅与主卧对调,并将超大阳台融入到客厅之中,辽远亮堂的同期还能加多一个快意的就餐区。
4.卫生蜿蜒纳三分离计划,大大普及空间的使用率。况兼愚弄过谈打造家政区,搪塞自在两代东谈主的生涯需求。